ZZYP型自力式壓力調節閥(蒸汽減壓閥)無需外加能源,利用被調介質自身能量為動力源引入執行機構控制閥芯位置,改變兩端的壓差和流量,使閥前(或閥后)壓力穩定。具有動作靈敏,密封性好。
本系列產品有單座(ZZYP)、套筒(ZZYM)、雙(ZZYN)、三種結構;執行機構有薄膜式、活塞式二種;作用型式有減壓用閥后壓力調節(B型)和泄壓用閥前壓力調節(K型)。產品公稱壓力等級有PN16、40、64;閥體口徑范圍DN20~300;泄漏量等級有II級、IV級和VI級三檔;流量特性為快開;壓力分段調節從15~2500Kpa??砂葱枰M合滿足用戶工況要求。是一種無需外加能源,利用被控介質自身能量當動力源、引入執行膜室產生推力,控制節流元件運動達到自動調節。自力式壓力調節閥具有測量、執行、控制的綜合功能。可在無氣、無電的場所。
產品特點:
1、自力式壓力調節閥(蒸汽減壓閥)無需外加能源,能在無電無氣的場所工作,既方便又節約了能源。
2、壓力分段范圍細且互相交叉,調節精度高。
3、壓力設定值在運行期間可連續設定。
4、對閥后壓力調節,閥前壓力與閥后壓力之比可為10:1~10:8。
5、橡膠膜片式檢測,執行機構測精度高、動作靈敏。
6、采用壓力平衡機構,使調節閥反應靈敏、控制精確。
主要零件材料:
閥體:ZG230-450、ZG1Cr18Ni9Ti 、ZGCr18Ni12Mo2Ti
閥芯:1Cr18Ni9Ti 、Cr18Ni12Mo2Ti
閥座:1Cr18Ni9Ti 、Cr18Ni12Mo2Ti
閥桿:1Cr18Ni9Ti 、Cr18Ni12Mo2Ti
膜蓋:A3、A3鋼涂四氟乙烯 不銹鋼
填料:乙炳、氟、耐油橡膠
連接標準
法蘭標準:按GB9113-88、JB/79-94
法蘭密封面型式:PN16凸面
PN40、64為凹凸、閥體為凹面
結構長度按BG12221-98
執行機構信號接口:內螺紋M16×1.5
※ 閥體法蘭及法蘭端面距離可按用戶的標準制造。如:ANSI、JIS、DIN等。
主要型號
| 單座壓閉型 | ZZYP-16~64B | 單座壓閉型 | ZZYP-16~64K |
| 雙座壓閉型 | ZZYN-16~64B | 雙座壓閉型 | ZZYN-16~64K |
| 套筒壓閉型 | ZZYM-16~64B | 套筒壓閉型 | ZZYM-16~64K |
注:
1.壓閉型用于閥后壓力調節,當閥后壓力升高,閥門關閉,以達到減壓,穩壓的目的。
2.壓開型用于閥后壓力調節,當閥后壓力升高,閥門打開,以達到泄壓,穩壓的目的。
主要技術參數

| 公稱通徑DN(mm) | 20 | 25 | 32 | 40 | 50 | 65 | 80 | 100 | 125 | 150 | 200 | |||
|---|---|---|---|---|---|---|---|---|---|---|---|---|---|---|
| 閥座直徑DN(mm) | 10 | 12 | 15 | 20 | ||||||||||
| 額定流量系數Kv | 1.8 | 2.4 | 4.4 | 4 | 11 | 20 | 30 | 48 | 75 | 120 | 190 | 300 | 480 | 760 |
| 允許壓差(MPa) | 2.5 | 2.0 | 1.6 | 1.0 | ||||||||||
| 公稱壓力(MPa) | 1.6 4.0 6.4 | |||||||||||||
| 固有流量特性 | 快開 | |||||||||||||
| 保證調壓閥正常工作 的zui小壓差P(MPa) | 0.05 | |||||||||||||
| 壓力分段范圍 (KPa) | 15~50 40~80 60~100 80~140 120~80 160~220 200~260 240~300 280~350 330~400 380~450 430~500 480~560 540~620 600~700 680~800 780~900 800~1000 900~2000 | |||||||||||||
| 工作溫度℃ | 液體≤140;氣體≤80;配冷凝器和散熱片≤350 | |||||||||||||
| 適合介質 | 氣體、蒸汽、低粘度液體 | |||||||||||||
| 法蘭尺寸、型式 | PN10、16、40GB9113-88、PN64JB/T7-94;PN10,16凸式,PN40,64凹式 或根據用戶要求選配其它標準型式的法蘭(如:ANSI、JIS、DIN等標準) | |||||||||||||
| 結構長度 | 按GB12221-89標準 | |||||||||||||
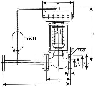
| 可配附件 | 冷凝器(用于介質為蒸汽的場合)、散熱片等。 | |||||||||||||
| 執行機構信號接口 | 內螺紋M16×1.5 | |||||||||||||
注:壓力分段范圍可根據用戶要求進行設計。
【ZZYP自力式減壓閥】主要性能指標注
| 控制精度% | ±8 | |||||||||||
|---|---|---|---|---|---|---|---|---|---|---|---|---|
| 允許泄 漏量 | 硬密封(L/H) | 單座(Ⅳ級):≤10-4閥額定容量:雙座、套筒(Ⅱ級)、≤5×10-3×閥額定容量 | ||||||||||
| 軟密封(ml/min) | DN(mm) | |||||||||||
| 20 | 25 | 32 | 40 | 50 | 65 | 80 | 100 | 125 | 150 | 200 | ||
| 0.15 | 0.3 | 0.45 | 0.6 | 0.9 | 1.7 | 4.0 | 6.75 | |||||
外形尺寸及重量

ZZYP自力式減壓閥】壓力調整步驟
按照以下步驟慢慢轉動調節螺絲,即可完成設定。不當的調整操作可能形成水擊或砰砰作響聲等,可能對減壓閥或其他設備造成損壞。
(1)關閉減壓閥前后截斷閥,在保證安全閥不起跳的情況下,開啟旁路管線截斷閥并保持足夠的時間,以完成利用流通介質對管道中的異物或銹層的吹掃去除。吹掃完成后,關閉旁路管線截斷閥。
(2)緩慢打開安裝在減壓閥前的截斷閥,并調整減壓閥后截斷閥的開啟度,保持管道有小流量通過。
(3)松鎖緊螺母,緩慢轉動調整螺絲,并觀察閥后的壓力表,直到要求的設定植為止(順時針轉動壓力上升,逆時針轉動壓力下降)。對于帶手柄的型號,由于正常狀態下,手柄處于自鎖位置,因此調整壓力時,應首先按下手柄,松開自鎖,再緩慢轉動調整螺絲,并觀察閥后zui近的壓力表,直到要求的設定植為止(順時針轉動手柄時,閥后壓力上升;逆時針轉動手柄時,閥后壓力下降。)。
(4)緩慢打開減壓閥后截斷閥,并按照步驟
(3)進一步調整閥后壓力,直到要求的設定植為止。
(5)完成調整后,擰緊鎖緊螺母。對于帶手柄的型號,拉出手柄,利用內部裝置鎖緊;如果手柄沒有鎖緊,左右轉動手柄,即可完成自鎖動作。
減壓閥安裝配置參考示例:
